白色烤漆玻璃给予前台后方半遮挡效果,摒弃一切繁琐的浮华,用纯粹的材质融入日常的舒适感。侧方争取自然光最大限度的渗透量,以开放、冷静而焕发灵感的形象示人。木饰面承载着丰富而厚重的纹理,利落的线条充盈视觉,两平见方,营造的质感大气优雅。
所有的一切目的只为空间简明、大方。因为植入的光,所有的简洁,变得清晰。亦使空间在转折之间、透出一副清新的时尚。
白色是整个重新建构的空间中保持稳定的部分,而由定制木质造型的体块、超白玻璃、形成的不同色调,不同质感的材质,就成了整个空间中最活泼的元素,
与白色相得益彰。让整个空间呈现出静谧但不沉闷的氛围。
色调以简约现代元素为主,有别于传统较为规整严肃的空间印象,利用灵活的设计语言以及建筑空间形式将内敛,精致,文化,人性化的元素与空间结合,提升空
间识别度。大面积的白通过形态的不同在灯光下形成多元层次,木饰面为设计中调节空间氛围的元素,辅以细微变化的木色,建立空间秩序。
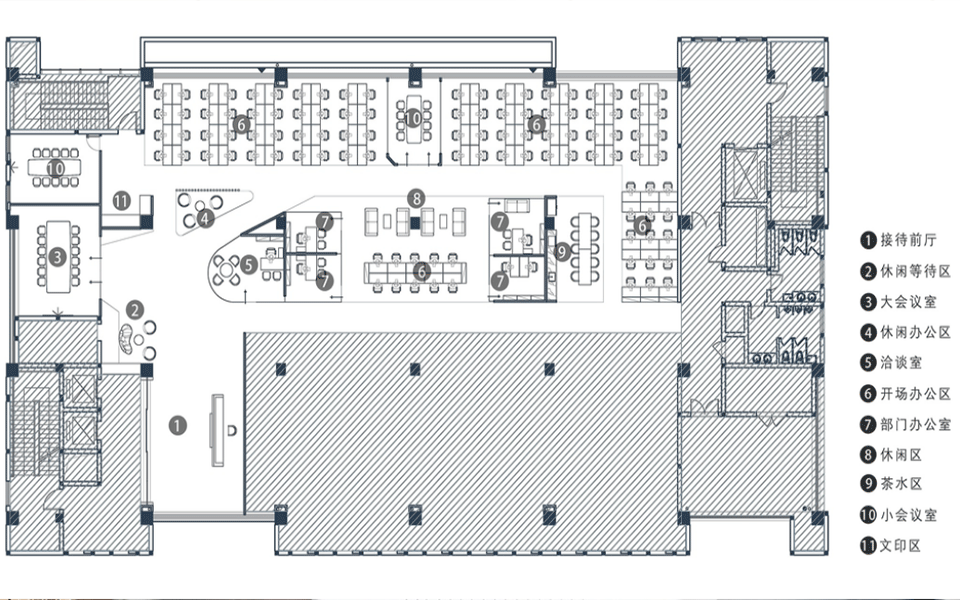
项目名称: 新格元生物企业装修设计 / 580㎡
面积: 580平方
热度: 1545
公司地址: 上海市闵行区罗锦路218号麦腾未来城5号楼312室









